Available Styles
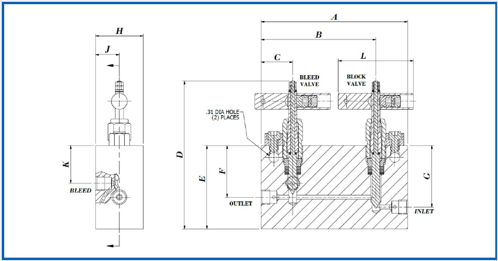
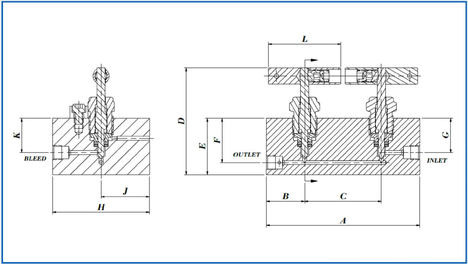
- Single Block & Bleed (SBB) Needle Valves
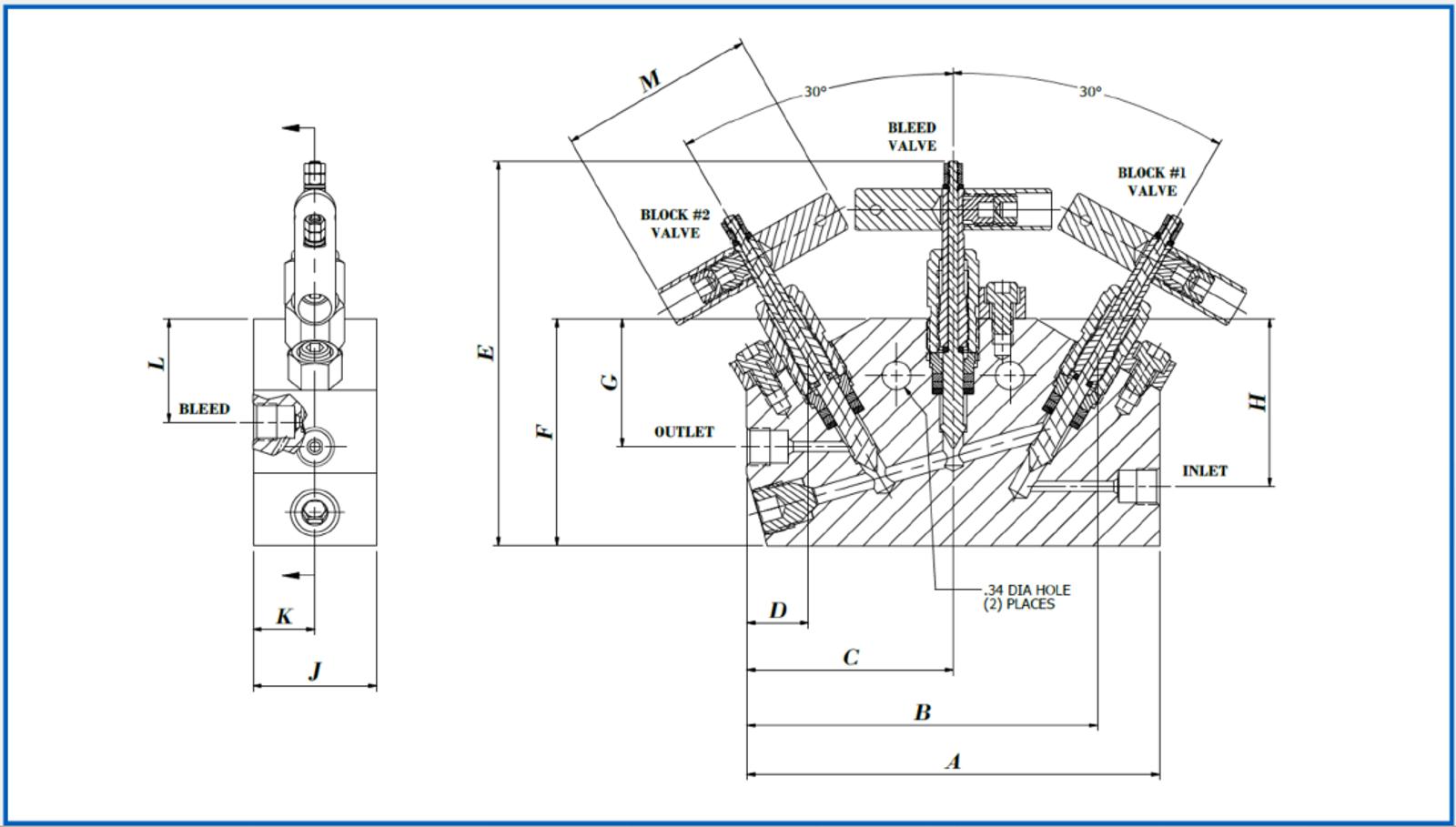
- Double Block & Bleed (DBB) Needle Valves
- Inline and compact manifold layouts
- Multiple configurations and connection sizes
- Materials include 316/316L stainless steel and other specialty alloys
Key Benefits
Enhanced Safety
- Built-in dual isolation for confidence in critical environments
- Fewer leak paths and lower emissions for safer operation
- Ready for hazardous fluids and hydrogen applications
Efficiency & Space Savings
- One compact valve replaces multiple components
- Faster installs, cleaner layouts, less time on site
- Streamlined maintenance and easier system access
Reliable Performance
- Engineered for severe-service conditions
- Smooth, precise needle control every time
- Durable materials and flexible connection options for easy integration




























